CQ9传奇电子

行业动态

了解最新公司动态及行业资讯

污染化学淋洗土壤修复设备出现了吗

2018-07-06 01:14:13 291 编辑:admin 来源:本站
     土壤是人类社会生产活动的重要物质基础,是不可缺少、难以再生的自然资源。当 前,我国土壤污染的形势已十分严峻,由土壤污染导致的农产品的生态安全问题已不容忽 视。由于土壤对环境污染具有汇的作用,土壤中有毒有害化学品通过大气和水体传递,可危 害人类和动物的生存繁衍与生命安全。这一过程可能比较隐蔽,但土壤污染已威胁人类的 安全。由于土壤污染的严重性及其修复的难度,以及对污染土壤修复的迫切性与需求,污染 土壤修复设备已成为当今环境科学研究的热点与极具挑战性的领域。 
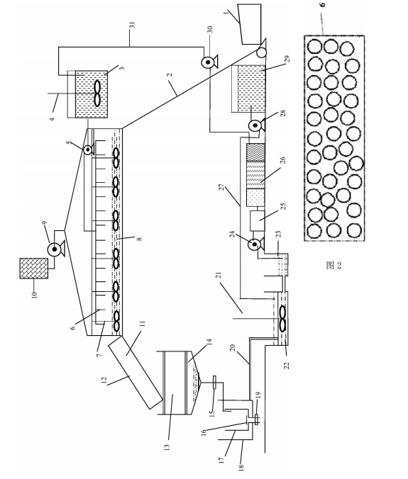
化学淋洗土壤修复设备

     近 20 多年来,美国、德国、荷兰、英国等国家先后投入巨大的人力、财力,深入开展 了污染土壤修复设备研究,在物理修复、化学修复和生物修复方面均取得显著进展,在一些技术 应用方面已进入到商业化阶段。具体而言,常见的土壤修复技术有热力学修复技术、热解吸 修复技术、焚烧法、土地填埋法、化学淋洗、堆肥法、植物修复、渗透反应墙、生物修复等。目 前为止,没有一项特殊的技术具有普遍适用性。生物修复、植物修复、渗透反应墙等修复时 间较长,影响土壤修复进程。焚烧法、土地填埋法会造成有效资源的浪费。热力学修复技术、 热解吸修复技术会造成热力污染,影响生物生长。化学淋洗因其高校、快速、处理量大的特 点受到欢迎,为二十世纪末美国环保署推荐使用的治理土壤的方法之一。 
     然而国内还没有较成熟的可实现自动化的污染化学淋洗土壤修复设备,并且对于 淋洗液的回收利用存在一定的困难,成熟细致的工业化应用设备尚不完善。 要克服现有技术的困难,必须有一种适用于大中型污染土地的 化学淋洗自动化装置,使其在较少的人力投入下,高效迅速的完成土壤修复问题,且一并实 现淋洗液的处理再利用以及泥水的分离压缩等。

30

装备制造经验

立即免费获取土壤修复方案

为用户提供及时、高效、便捷的服务

在线咨询
CQ9传奇电子环境希望与你携手,共创美好未来...
5